Ich will und muß “AUS DEM WAS ICH SCHON HABE”, etwas ” NEUES ERSCHAFFEN” !! K.K.
KELLER, TIEFGARAGE, WÄRMEPUMPE, PHOTOVOLTAIK-ANLAGE, AUFZUG
DAS KME MIT 12 EIGENTUMSWOHNUNGEN
ELEKTRO-LADESTATIONEN für PKW´S und Bikes
TV-SAT KOPFSTATION, Arial-VIDEOÜBERWACHUNG
BALKONEN und LOGGIAS,
WASCHMASCHINEN- NÄH- UND TROCKENRÄUME- GEMEINSCHAFTS-KÜHLHAUS

SERVICE-RÄUME GEMEINSCHAFTS-WERKSTATT HOBBY - RAUM RAUM FÜR FAMILIENFEIERN WC- FÜR DAMEN UND HERREN
ZUSÄTZLICH IM KELLER
UND SO SOLL ES WERDEN, MIT SEHR VIEL NATUR RUND HERUM !
IM KELLER FÄNGT ALLES AN
DAS ERDGESCHOSS
HIER SIND WIR IM OBERGESCHOSS
JETZT STEIGEN WIR AUF´S DACHGESCHOSS
JETZT EINE FOTOGALLERIE, WIE ES AUSSEHEN KÖNNTE !
DER EINGANG IM WESTEN
NORD - WEST
NORDEN
NORD-OST
OSTEN
OST - SÜD
SÜDEN
SÜD - WEST
WESTEN AUS DER VOGELPERSPEKTIVE
NORD-WEST AUS DER VOGELPERSPEKTIVE
NORDEN AUS DER VOGELPERSPEKTIVE
NORD-OST AUS DER VOGELPERSPEKTIVE
NORD-OST AUS DER VOGELPERSPEKTIVE
SÜD-OST AUS DER VOGELPERSPEKTIVE
SÜDEN AUS DER VOGELPERSPEKTIVE
HIER NOCH EINMAL DAS ERDGESCHOSS mit PARKPLÄTZEN
HIER SIND WIR IM NEUEN DACHGESCHOSS mit komplett neuem Dachstuhl
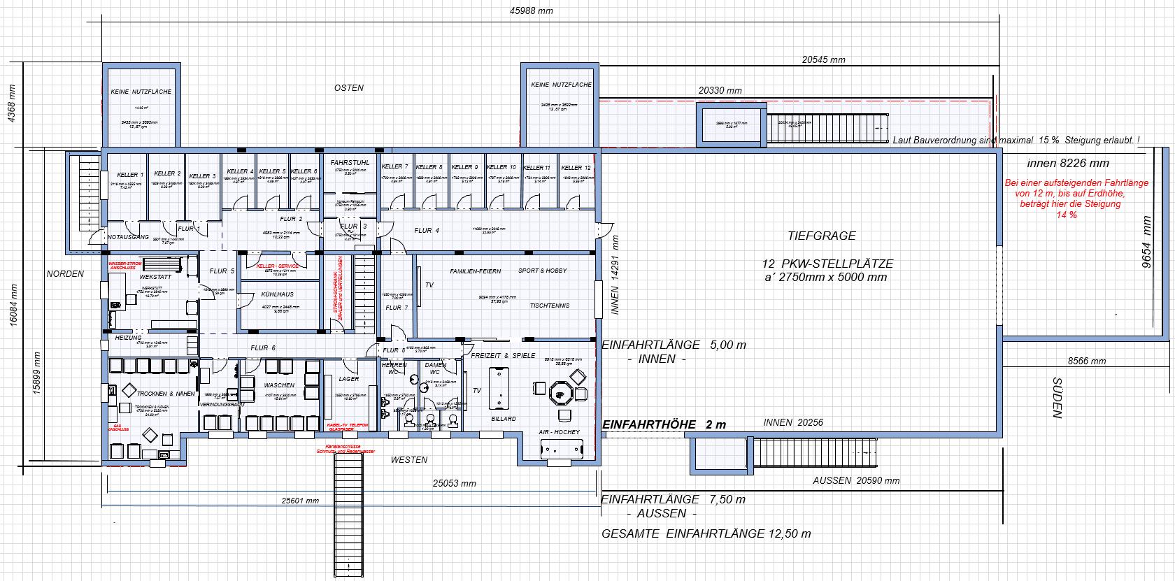
HIER DER KELLER mit STELLPLÄTZEN in der TIEFGARAGE
OSTEN AUS DER VOGELPERSPEKTIVE


WOHN- und NUTZFLÄCHENBERECHNUNG
Um die WOHN- und NUTZFLÄCHEN-ZEICHNUNGEN vergrössern zu können, müssen Sie diese auf Ihren Rechner speichern !